Kruskopf & Company – Learn More
Minneapolis, MN
AIA Minneapolis Merit Award/FAB Grand Award
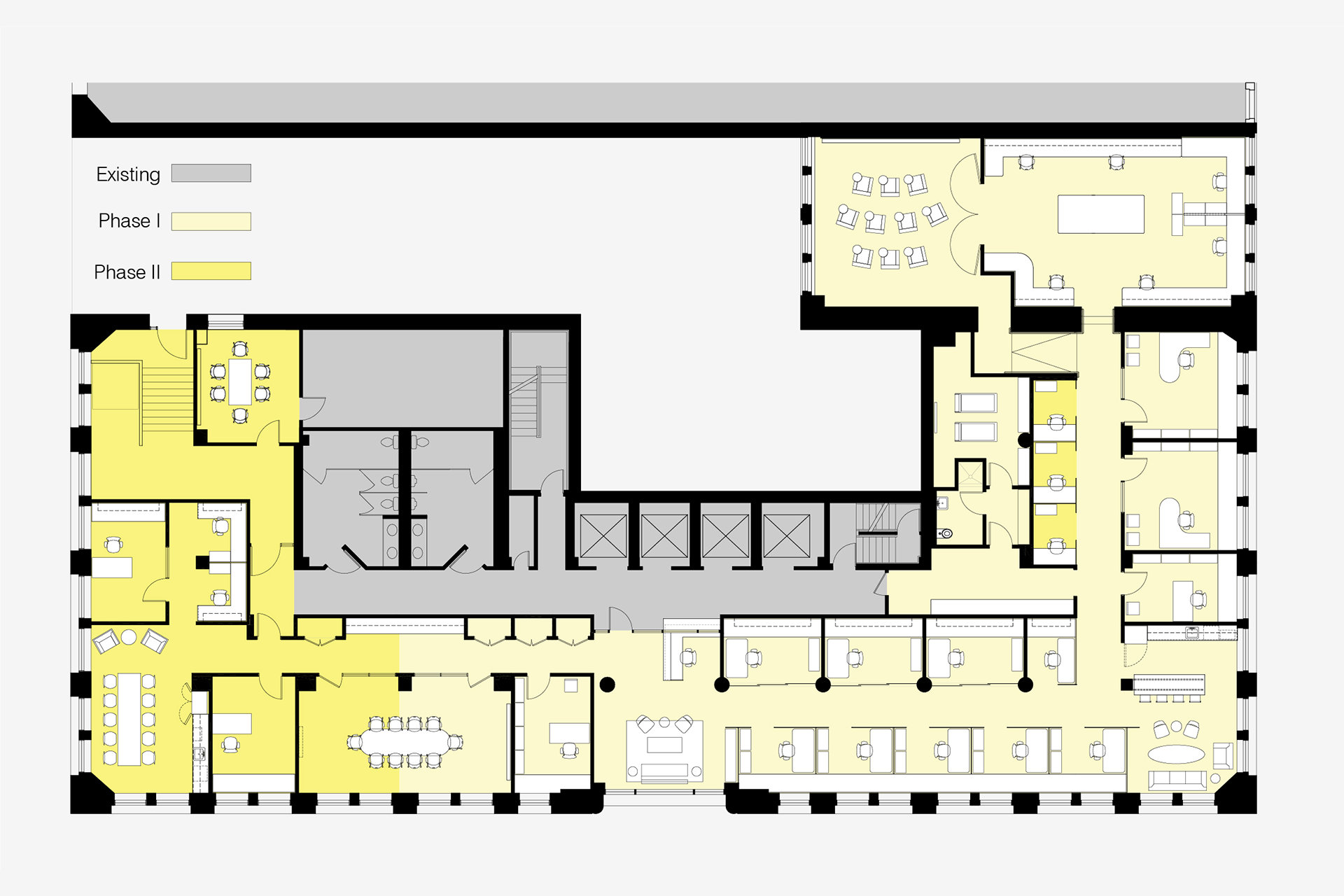
Known nationally for an exceptional body of creative work, Kruskopf & Company engaged the U+B team to create work environments that encourage gathering and creative thought. The interiors of the invigorated space prioritize light and color, utilizing translucent and transparent walls to afford the transmission of natural light from the large exterior windows throughout the interior.
“While many local advertising and marketing agencies of our size have gravitated towards an industrial aesthetic, U+B Architecture & Design collaborated with us to develop a work space that was fresh, uplifting, sophisticated, visually open and full of light. We felt this was a better fit for the way we work and the image we would like our firm to portray.”
Sue Kruskopf, Principal, Kruskopf & Company Advertising
(0)Dislikes
(0)