New York City Penthouse – Learn More
New York, NY
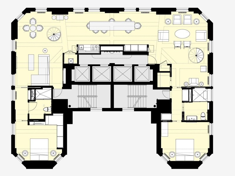
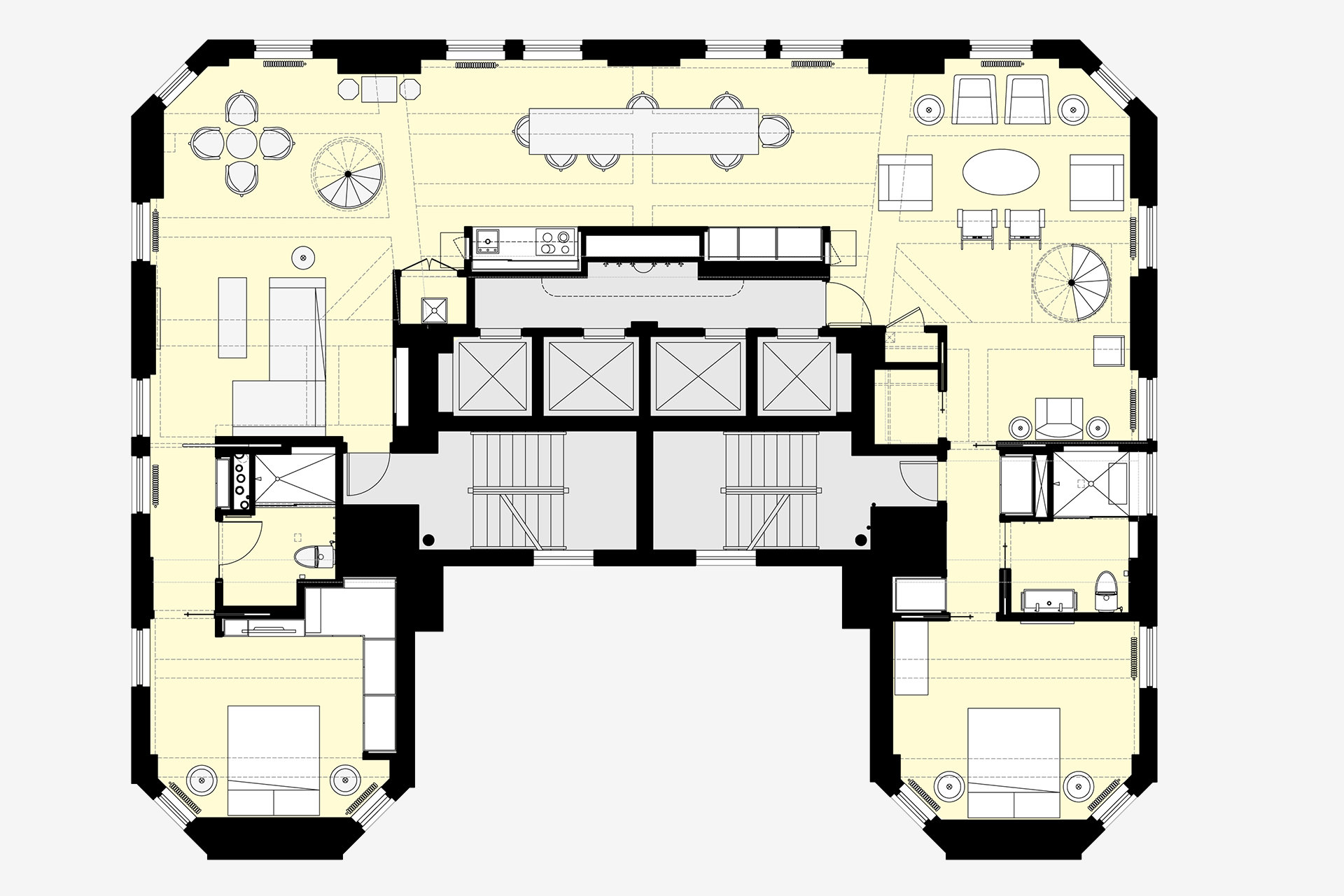
Two older apartments (one formerly owned by Robert Mapplethorpe) were combined into a single spectacular penthouse space on two levels at the historic 5th Avenue building in New York. The environmentally driven project included sustainable material finishes, state of the art lighting and building control systems, new windows as well as a new air distribution and filtration system.
Likes
(0)Dislikes
(0)
(0)Dislikes
(0)