Light-filled Transformation – Learn More
Minneapolis, MN
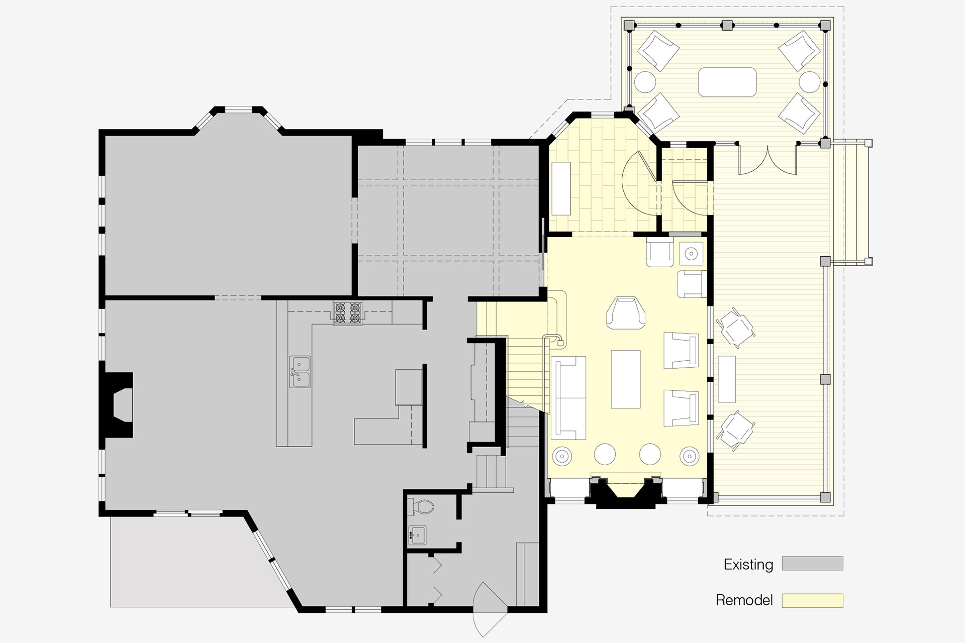
When U+B was hired to renovate this turn of the century home it was marred by a 1960′s era addition on the front of the house which was poorly built and blocked light to the interior spaces. The design of a new open and screened porch replaces those spaces, creating a series of outdoor rooms and restoring the character of the original home. New windows provide views of the spacious front garden and allow abundant light into the newly renovated family living room.
Likes
(0)Dislikes
(0)
(0)Dislikes
(0)